Ferdinand-Rhode-Straße 24, 04107 Leipzig
Verkauft
846.000.- €
4 Zimmer | 146 qm | Loggia und Terrasse | Selbstbezug

4-Zimmer-Wohntraum im Musikviertel

 

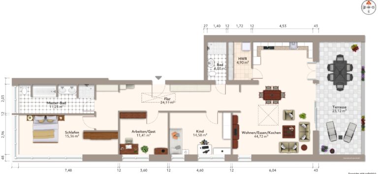
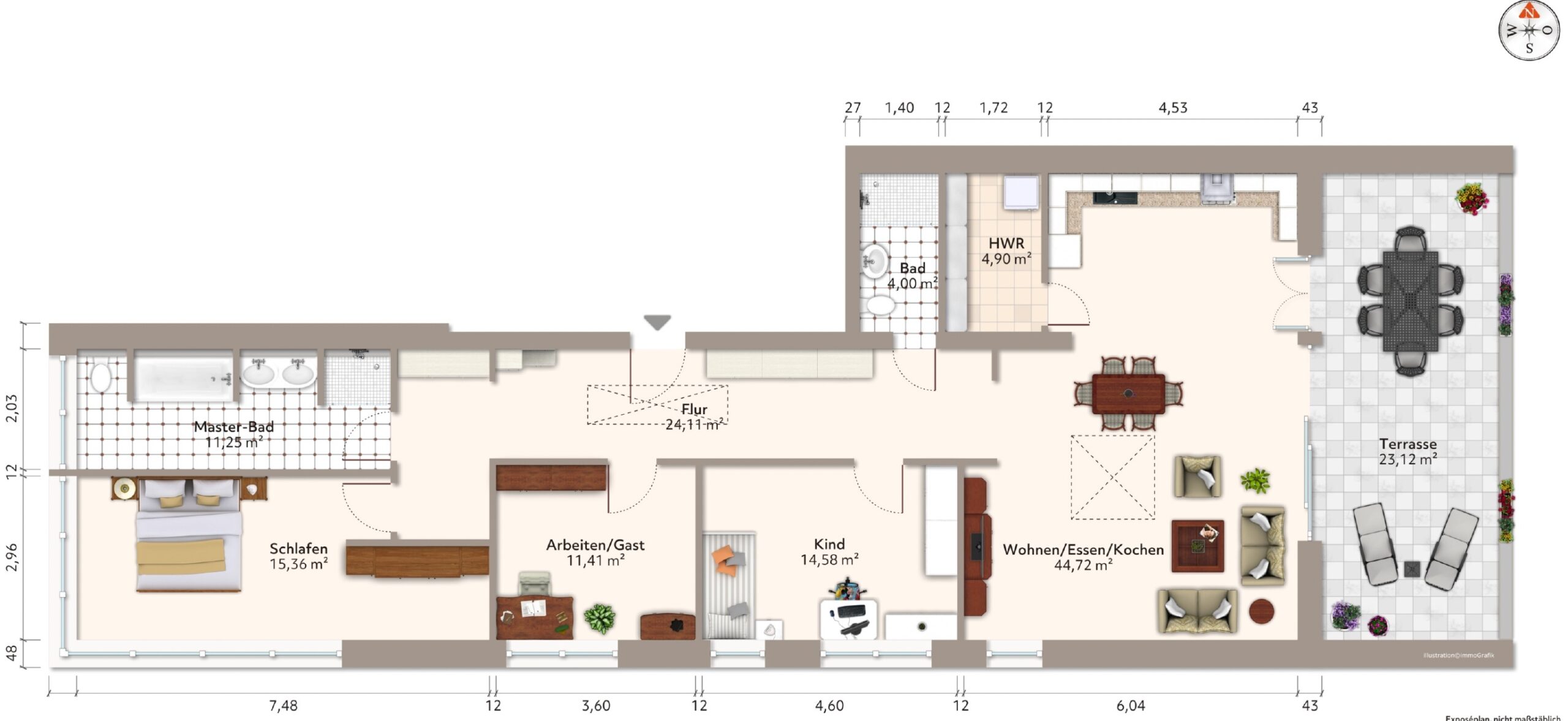
Wohnen auf höchstem Niveau: Die Neubau-Eigentumswohnung ist modern, stilvoll und liegt im Herzen von Leipzig, nur wenige Gehminuten vom beliebten Clara-Zetkin-Park entfernt. Hier finden anspruchsvolle Bewohner urbanes Flair und moderne Eleganz in einem der besten Viertel der Stadt. Der gut geplante Grundriss erfüllt alle Ansprüche für eine Familie oder großzügiges Leben und Arbeiten. Das Highlight: ein Wohnzimmer mit offener Küche und großer Terrasse.

Ausstattung

Der architektonisch ansprechende Neubau wurde 2013 in solider Bauweise errichtet und fügt sich harmonisch in die Umgebung ein. Bereits der Eingangsbereich ist repräsentativ, mit schwarzen Marmortreppen, edlem Leuchter und stilvollen Goldornamenten. Auch das Treppenhaus spiegelt den Anspruch an Großzügigkeit und Luxus wider. Mit dem geräumigen Fahrstuhl erreicht man die 5. Etage. Die Immobilie überzeugt mit hohen Decken, die ein großzügiges Raumgefühl vermitteln, sowie großzügigen Oberlichtern, die für lichtdurchflutete Räume sorgen.

Elegante, hohe Türen unterstreichen das architektonische Konzept und verleihen der Penthouse-Wohnung eine exklusive Note. Vom großzügigen Wohnzimmer mit integrierter Küche gelangt man auf die 23 qm große Terrasse – hier gibt es genug Platz für Sonnenliege, Grill und Esstisch. Die deckenhohen Fenster und Türen sorgen für Weite und Helligkeit. Der direkt an die Küche angrenzende Hauswirtschaftsraum bietet mit seinen fünf Quadratmetern ausreichend Stauraum und Platz für Waschmaschine, Trockner und Vorräte.

Vom Schlafzimmer aus blickt man durch die zweiseitige Fensterfront auf Leipzig. Ein Ankleidezimmer sowie das Masterbad mit edler Sanitärkeramik und praktischen Badeinbauten erfüllen alle Ansprüche an luxuriöses Wohnen. Diese Traumwohnung verfügt über zwei weitere Zimmer für Kinder, Arbeit oder Gäste sowie ein weiteres Bad mit Dusche. In der gesamten Wohnung ist hoch-wertiges Eichenparkett in breiten Dielen verlegt, das frisch renoviert in neuem Glanz erstrahlt.

Lage

Diese schöne Eigentumswohnung befindet sich in absoluter Top-Lage im Musikviertel. Das idyllische Wohnviertel mit seinen Gründerzeit-Ensembles und eleganten Neubauten gehört zur äußeren Westvorstadt von Leipzig und wird auf drei Seiten von Grünanlagen eingefasst. Im direkten Umkreis befinden sich eine Vielzahl an Einkaufsmöglich-keiten, Schulen, Kitas sowie kleine Cafés und Restaurants. Der beliebte Clara-Zetkin-Park – das grüne Herz Leipzigs – ist ein Katzensprung entfernt.

Auch in die Innenstadt gelangt man in wenigen Gehminuten. Mit dem Auto sind es nur wenige Kilometer zum beliebten 5-Seengebiet.

Die zentrale und dennoch ruhige Lage verbindet städtisches Flair mit hoher Lebensqualität – ein ideales Zuhause für ein besonderes Wohngefühl in bester Stadtlage.

Größe

146 qm

Kaufpreis

849.000.- €

Objekt

Penthouse

Baujahr

2013

Extras

Oberlichter

Zustand

ausgezeichnet

Geschoss

4. Stock

Heizung

Gasheizung